The Sunnyvale Town Council will hear a presentation on the budget tonight. So far, expenses are running well below expected levels, and revenues are in line with expectations (good!). Our largest expenses remain tied to Police (27%) and Fire/EMS services (22%). 56% of our revenues come from property taxes, and 24% came from sales tax, with the rest coming from miscellaneous fees.

Council will also have its second reading of the plan for a new 120-foot cellphone tower to be put at the Sunnyvale ISD high school stadium. Per the discussion at last week’s Town Council meeting, this should provide better cell coverage for an approximately 2 mile radius around the school, which is a large portion of the town’s population. One letter was submitted to the Town opposing the cell tower, with the reason cited as simply “radiation.”

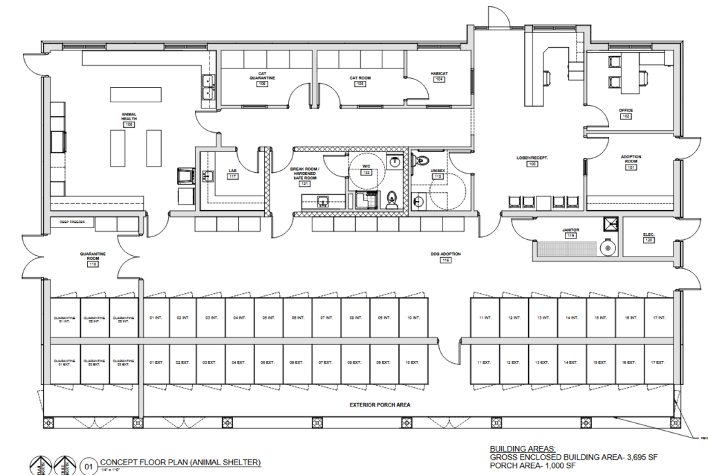
The Animal Shelter’s funding was included in our bond offering last Fall, and the designer (KSA, an architect who specializes in animal shelters) will present the concept and floor plan.

The new police station (to be built on land essentially next to the current one) will have two stories with space for our own dispatch service–meaning we won’t have to pay Mesquite for this service.


Funds are already earmarked for these projects. However, it remains unclear whether the design concept will include proposed dollar estimates to construct these new buildings, and what pieces would need to be sacrificed to stay within budget.









